plan furniture
Увеличить
уровень
Увеличить

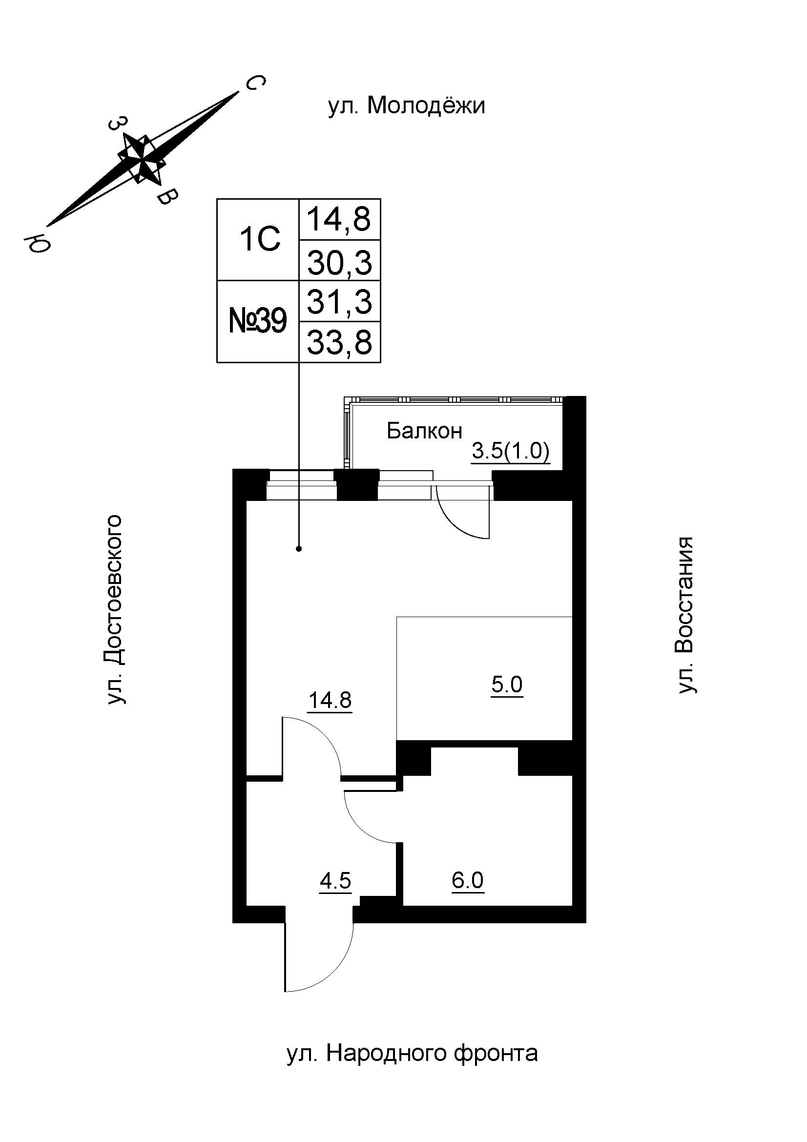
Квартира № 39

Старт продаж - IV квартал 2026
Дом
1
Этаж
4/17
Комнат
1
Площадь общая
31.3 м2
Срок сдачи
3 кв. 2028
Площадь жилая
14.8 м2
Выберите способ покупки
100% оплата
Ипотека
Материнский капитал
Trade-IN

О проекте

ЖК «Достоевский» расположен в тихом районе с развитой инфраструктурой, в квартале улиц Народного Фронта, Восстания, Достоевского и Молодёжи. Район уже сформирован и сочетает в себе все необходимые объекты социальной и торговой инфраструктуры. До центра города 25 минут на автомобиле. До станции метро Проспект Космонавтов около 10 минут на общественном транспорте.

Проект предусматривает строительство трех современных жилых домов с подземными автостоянками, а также детского дошкольного образовательного учреждения.

Первая очередь –17-ти этажный жилой дом с подземным паркингом на 61 машино-место.

Архитектура здания выполнена в лаконичном современном стиле. В отделке фасадов используются системы наружной теплоизоляции с декоративной штукатуркой, а цоколь и входные группы оформлены керамическим и натуральным гранитом, что формирует аккуратный и выразительный внешний облик.

Класс дома
Класс дома Комфорт
Двор
Двор Благоустроенная территория с детскими и спортивными площадками
Этажность
Этажность 17 этажей
Парковка
Парковка Подземная, на 61 машино-место
Отделка
Отделка Под чистовую, под ключ
Безопасность
Безопасность Закрытая придомовая территория, домофон, видеонаблюдение, контроль доступа

Особенности

Инфраструктура
Удобное расположение
Инфраструктура
Благоустроенный двор
Спорт и отдых
Благоустроенный двор
Дизайнерское оформление
Просторный холл
Дизайнерское оформление
Планировки
Пространство для жизни
Планировки
Отделка
Под ключ и под чистовую
Отделка
Паркинг
Экономия времени
Паркинг
Своя управляющая компания
Сервис
Своя управляющая компания
Особенности

Галерея проекта

Похожие квартиры